Fuochi costruzioni

LOTTO ABITAT APPARTAMENTI - BIBBIENA

Il fabbricato plurifamiliare è realizzato secondo criteri di bioedilizia e risparmio energetico con classificazione in classe energetica A. E’ dotato di impianto fotovoltaico atto a alimentare tutte le parti comuni del fabbricato: ascensori, centrale termica, autorimesse e giardini. E’ previsto inoltre un impianto solare in grado di fornire il 50% – 60% del fabbisogno di acqua calda sanitaria.

Migliore di ogni altra forma pubblicitaria è il vostro contatto con le persone che già abitano gli appartamenti. Sapranno informarvi loro stessi sulle caratteristiche e sui pregi degli appartamenti. 

DOVE SI TROVANO?

Gli appartamenti si trovano nel comune di Bibbiena all’internodi una lottizzazione denominata “Comparto C 14” –Zona Santa Maria.

PROGETTISTA: Architetto Luca Bonetti

PIANO TERRA

APPARTAMENTO 1

L’alloggio è dotato al piano interrato di cantina e garage.

Per il risparmio fiscale relativo al garage clicca su risparmio fiscale dal menu.

APPARTAMENTO 2

L’alloggio è dotato al piano interrato di cantina e garage.

Per il risparmio fiscale relativo al garage clicca su risparmio fiscale dal menu.

APPARTAMENTO 3

L’alloggio è dotato al piano interrato di cantina e garage.

Per il risparmio fiscale relativo al garage clicca su risparmio fiscale dal menu.

APPARTAMENTO 4

L’alloggio è dotato al piano interrato di cantina e garage.

Per il risparmio fiscale relativo al garage clicca su risparmio fiscale dal menu.

APPARTAMENTO 5

L’alloggio è dotato al piano interrato di cantina e garage.

Per il risparmio fiscale relativo al garage clicca su risparmio fiscale dal menu.

APPARTAMENTO 6

L’alloggio è dotato al piano interrato di cantina e garage.

Per il risparmio fiscale relativo al garage clicca su risparmio fiscale dal menu.

APPARTAMENTO 7

L’alloggio è dotato al piano interrato di cantina e garage.

Per il risparmio fiscale relativo al garage clicca su risparmio fiscale dal menu.

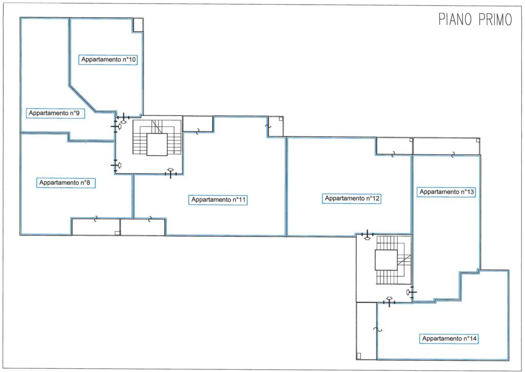
PIANO PRIMO

APPARTAMENTO 8

L’alloggio è dotato al piano interrato di cantina e garage.

Per il risparmio fiscale relativo al garage clicca su risparmio fiscale dal menu.

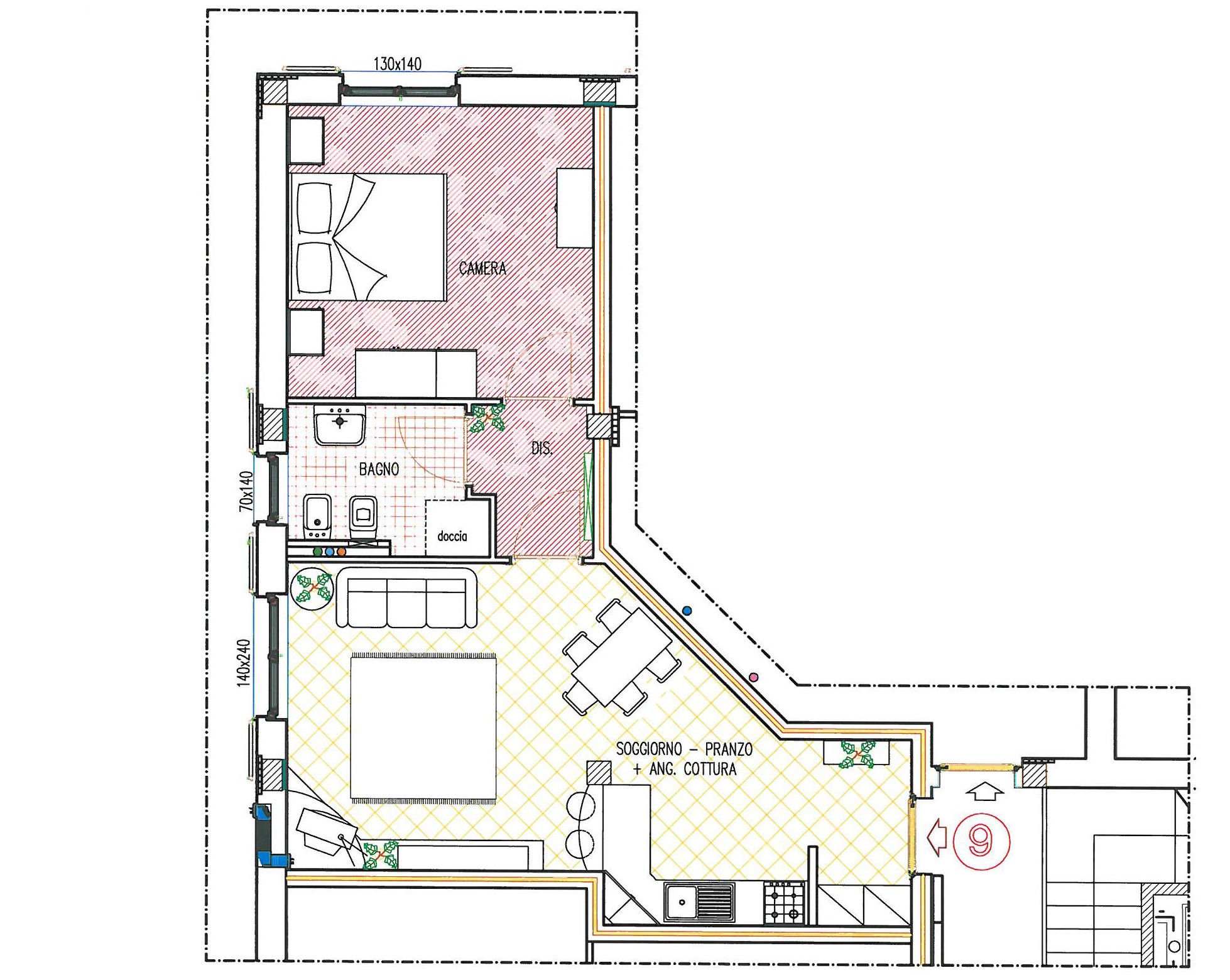
APPARTAMENTO 9

L’alloggio è dotato al piano interrato di cantina e garage.

Per il risparmio fiscale relativo al garage clicca su risparmio fiscale dal menu.

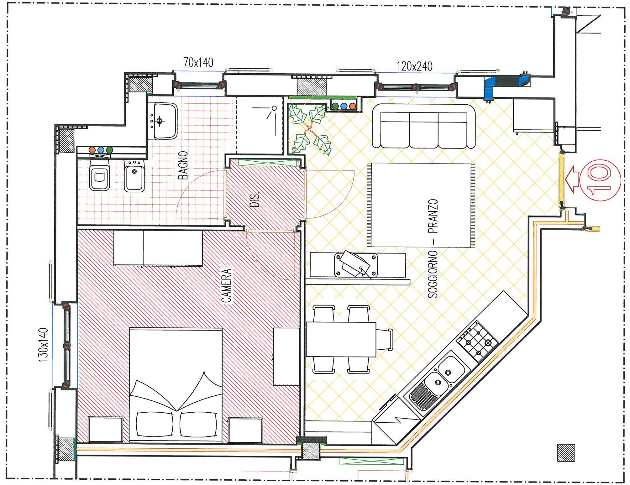
APPARTAMENTO 10

L’alloggio è dotato al piano interrato di cantina e garage.

Per il risparmio fiscale relativo al garage clicca su risparmio fiscale dal menu.

APPARTAMENTO 11

L’alloggio è dotato al piano interrato di cantina e garage.

Per il risparmio fiscale relativo al garage clicca su risparmio fiscale dal menu.

APPARTAMENTO 12

L’alloggio è dotato al piano interrato di cantina e garage.

Per il risparmio fiscale relativo al garage clicca su risparmio fiscale dal menu.

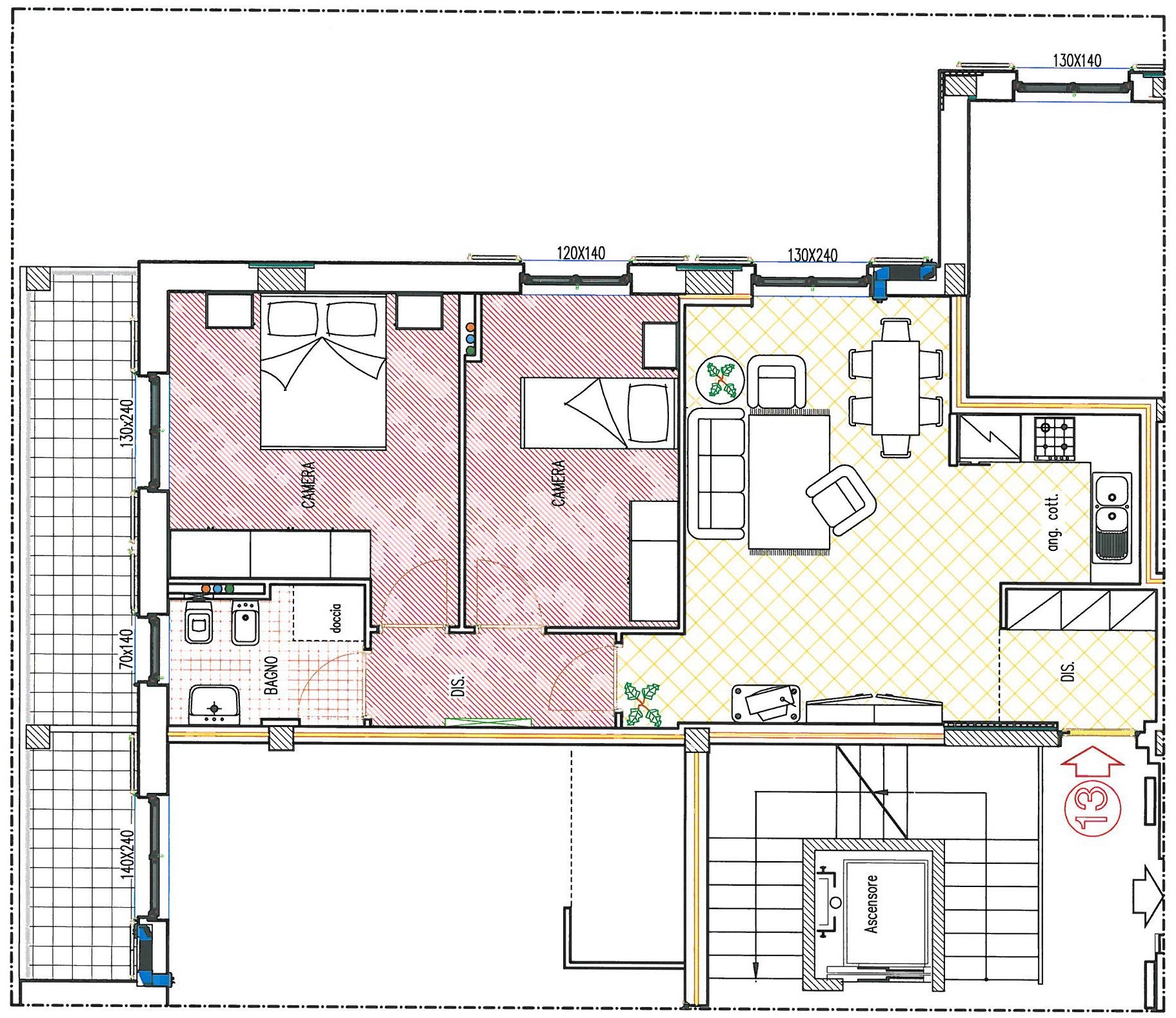
APPARTAMENTO 13

L’alloggio è dotato al piano interrato di cantina e garage.

Per il risparmio fiscale relativo al garage clicca su risparmio fiscale dal menu.

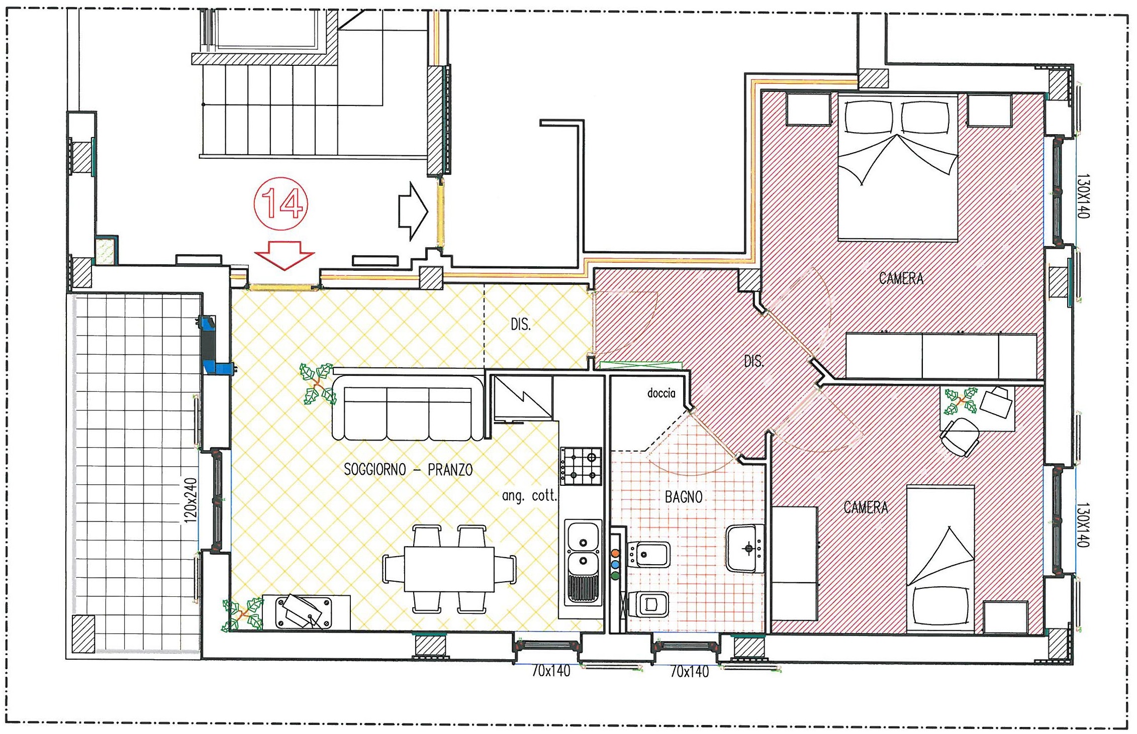
APPARTAMENTO 14

L’alloggio è dotato al piano interrato di cantina e garage.

Per il risparmio fiscale relativo al garage clicca su risparmio fiscale dal menu.

PIANO SECONDO

APPARTAMENTO 15

L’alloggio è dotato al piano interrato di cantina e garage.

Per il risparmio fiscale relativo al garage clicca su risparmio fiscale dal menu.

APPARTAMENTO 16

L’alloggio è dotato al piano interrato di cantina e garage.

Per il risparmio fiscale relativo al garage clicca su risparmio fiscale dal menu.

APPARTAMENTO 17

L’alloggio è dotato al piano interrato di cantina e garage.

Per il risparmio fiscale relativo al garage clicca su risparmio fiscale dal menu.

APPARTAMENTO 18

L’alloggio è dotato al piano interrato di cantina e garage.

Per il risparmio fiscale relativo al garage clicca su risparmio fiscale dal menu.

APPARTAMENTO 19

L’alloggio è dotato al piano interrato di cantina e garage.

Per il risparmio fiscale relativo al garage clicca su risparmio fiscale dal menu.